Casa Indipendente In Vendita Marsciano 31921060-24
Strada Marscianese, 44 San Valentino della Collina, Marsciano, PG, 06055, Provincia di Perugia
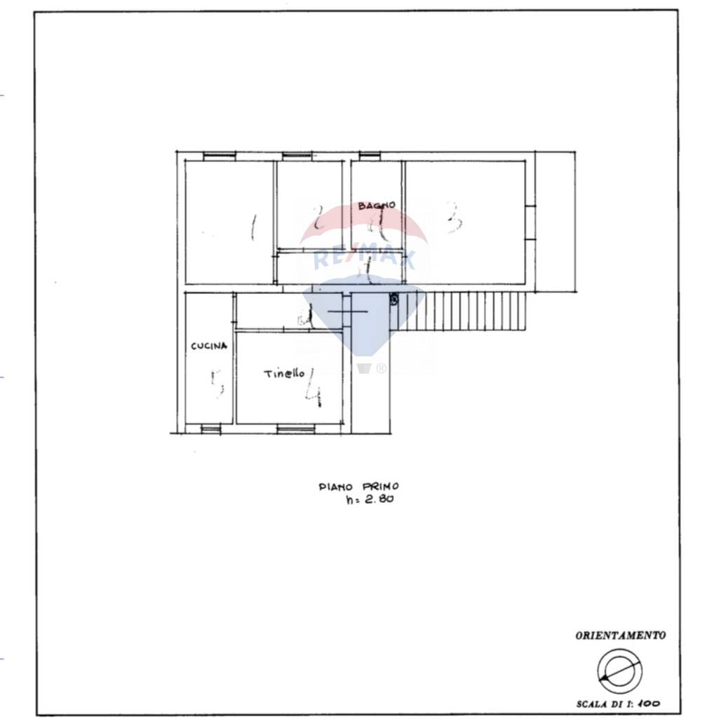
Descrizione dell'immobile
In vendita a Marsciano, nella zona di San Valentino della Collina, proponiamo una splendida casa indipendente su due livelli, con una superficie totale di 200 metri quadrati e 180 metri quadrati calpestabili. Attualmente in stato libero al rogito, la proprietà si presenta in ottime condizioni di conservazione e offre una disposizione interna di 4 locali, di cui 5 camere da letto e 2 bagni. L'abitazione è dotata di impianto di riscaldamento autonomo a metano, con radiatori o pannelli radianti a seconda delle necessità. E inoltre presente impianto di aria condizionata in tutta la casa. Gli infissi e le finestre sono in ferro e legno, garantendo un ottimo isolamento termico e acustico. L'abitazione è stata oggetto di ristrutturazione ed è dotata di cappotto termico di 5cm interno al primo piano. La casa è completamente arredata, pronta per essere abitata sin da subito e dispone di un balcone e di un ampio giardino privato, ideale per trascorrere piacevoli momenti all'aperto. La proprietà si sviluppa su due piani, offrendo ampi spazi e una grande luminosità grazie alle numerose finestre presenti in ogni ambiente. Una soluzione ideale per chi desidera una casa indipendente, in una zona tranquilla e riservata, ma comunque vicina ai principali servizi e alle vie di comunicazione.



































